4/1B Sunley Street, Westown, New Plymouth

120m2
Ref No: NPC02834

4/1B Sunley Street, Westown, New Plymouth

120m2
Ref No: NPC02834
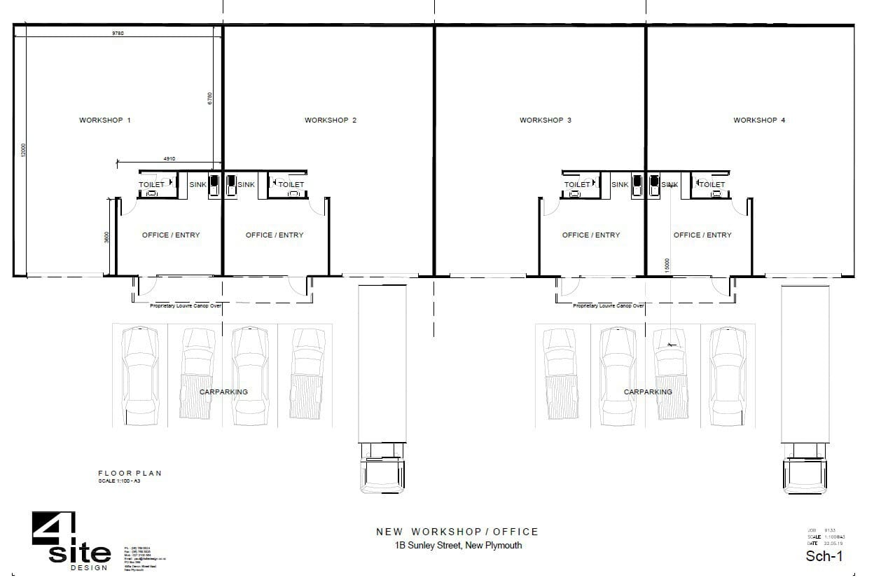
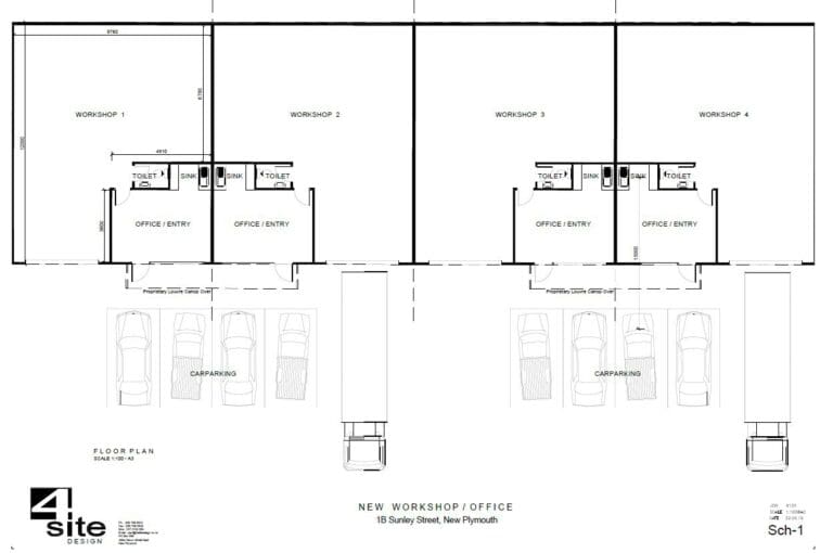
Workshop, Warehouse Or Storage
4/1B Sunley Street, Westown, New Plymouth
Workshop, Warehouse Or Storage

Ideal for tradies or businesses looking to move out of the garage at home!
An excellent workshop + office unit on Sunley Street in the industrial area of Westown.
The unit is approx 120m2 in size.
There is an office with sink, separate toilet, aircon in the office, fibre, LED lighting and a security system – everything you need.
There is a large roller door for access to the workshop.
The office has excellent natural light thanks to a large window frontage.

Call today to view and secure this great unit.

Share

120m2
More about New Plymouth
Taranaki's charming urban center, New Plymouth, is renowned for its exceptional quality of life. Residents enjoy the unique ability to ski in the morning on the slopes of Mt. Taranaki and catch some waves in the afternoon at nearby beaches.

Enquire now

Our team of experts share our knowledge and expertise within the industry

Agent

Properties you might also like

New listing

2/6 Sunley Street, Westown, New Plymouth
110m2
2262m2
$25,500 +GST and OPEX
127 Vivian Street, New Plymouth, New Plymouth
150m2
514m2
$40,000 +OPEX +GST
63 Devon Street West, New Plymouth Central, New Plymouth
369m2
$55,000 +GST negotiable

There has been a McDonald Real Estate in Taranaki for longer than anyone can remember

Property documents

"*" indicates required fields

Please fill out the form below to access the available property documents.

We will only contact you with relevant information. For further information view our full Privacy Policy.